+ filtres
les presses du réel

AHA In PracticeA Travelogue by Leeke Reinders – L'Ermitage, Jubel, Ulysse

AHA<!----> - AHA In Practice
Pour le cinquième livre de la série In Practice, l'architecte Aurélie Hachez et l'anthropologue culturel Leeke Reinders invitent à un voyage à travers trois projets architecturaux novateurs : L'Ermitage dans la ville de Bruxelles, la banlieue de Jubel et la campagne d'Ulysse.
Cet ouvrage n'explore pas seulement le processus de conception et son adoption ultérieure par les habitants, mais approfondit également les implications théoriques de l'agencement des objets dans le travail d'AHA, l'éthique du travail stratégique au jour le jour et la représentation créative des bâtiments en tant qu'entités dotées de leur propre histoire.
La série In Practice explore les multiples façons dont les architectes peuvent engager leur pratique professionnelle dans la recherche universitaire et réciproquement. In Practice cherche à ouvrir un espace pour les pratiques architecturales dans la recherche à travers le développement de méthodologies, de conférences, de publications et de studios.
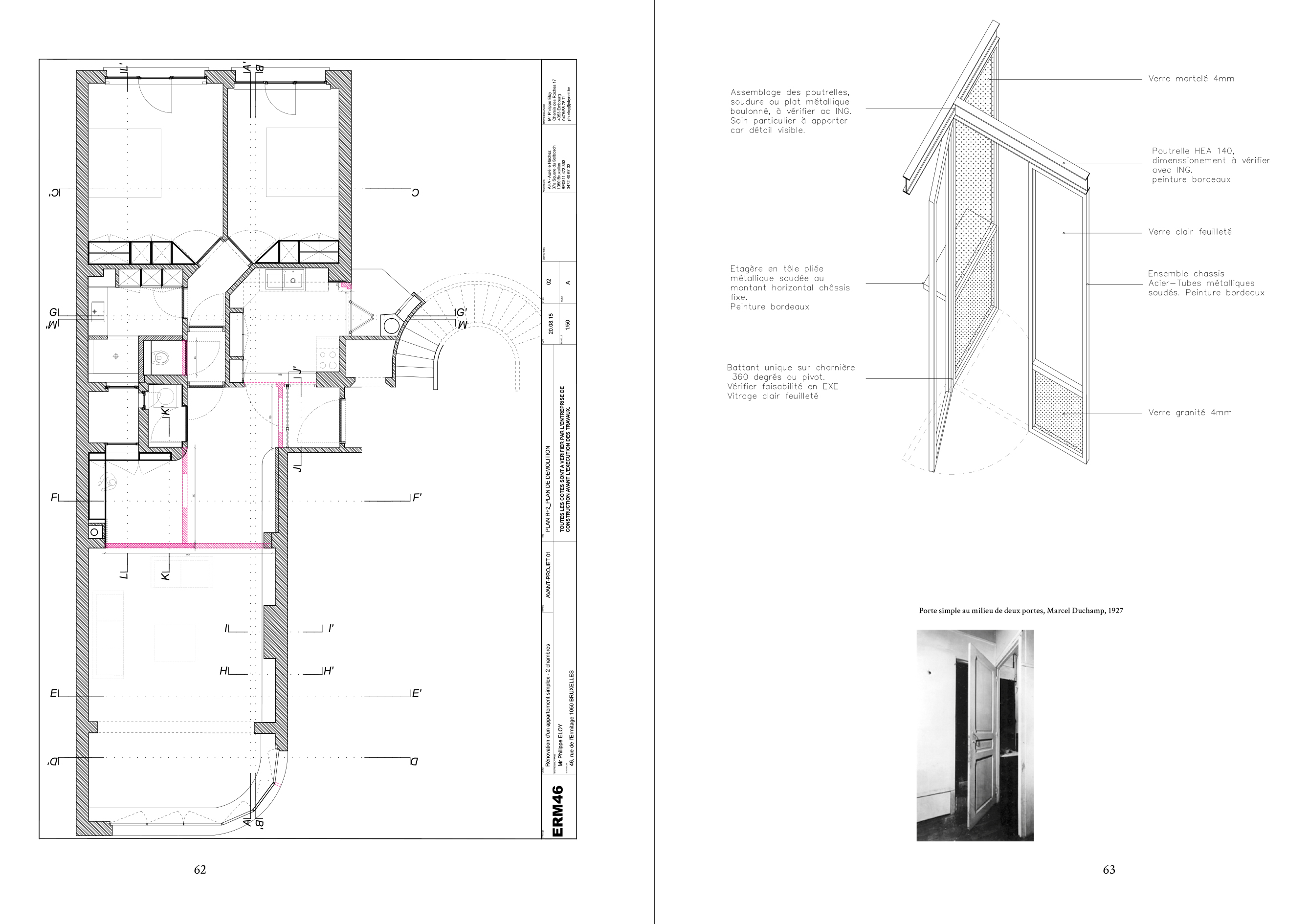
AHA est une agence d'architecture belge fondée en 2012 par Aurélie Hachez.
Edité par Benoît Burquel, Harold Fallon, Benoît Vandenbulcke.
Contributions de Leeke Reinders, Martina Barcelloni Corte, Benoît Burquel, Bart Decroos, Harold Fallon, Aurélie Hachez, Carlo Menon, Laura Muyldermans, Benoît Vandenbulcke, Karel Wuytack.

Conception graphique : Orfée Grandhomme & Ismaël Bennani.
 
paru en juin 2024
édition anglaise
17 x 24 cm (broché)
288 pages (ill.)
 
27.00
 
ISBN : 978-9-46498-737-9
EAN : 9789464987379
 
en stock
AHA In Practice
AHA In Practice
AHA In Practice
AHA In Practice
AHA In Practice
AHA In Practice
AHA In Practice
AHA In Practice
AHA In Practice
AHA In Practice
AHA In Practice
AHA In Practice
AHA In Practice


 haut de page